zurück zur übersicht
Realisierte Bauprojekte
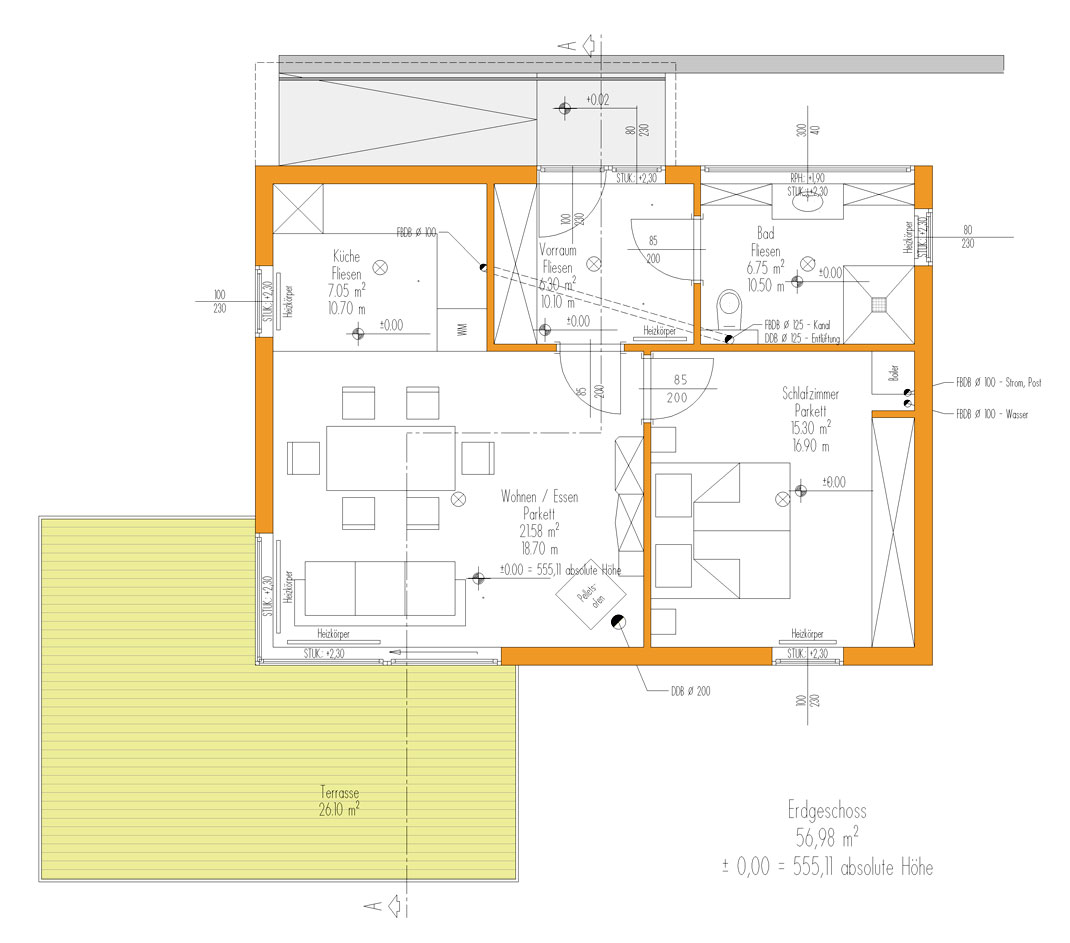
Behindertengerechtes Einfamilienwohnhaus | Villach
impressum
|
sitemap
|
seite drucken
©2006
o.k. | planen+errichten
bmst. ing. otto koncilia | kampeleweg 11 | a-9500 villach
mobil: +43 (0) 676 88 587 100 | fax: +43 (0) 4242 / 582254 | e-mail:
office@otto-koncilia.at