home philosophie projekte team kontakt
Umbauten und Sanierungen
Innengestaltung und Innenarchitektur
Aussenanlagen
Aussenanlagen
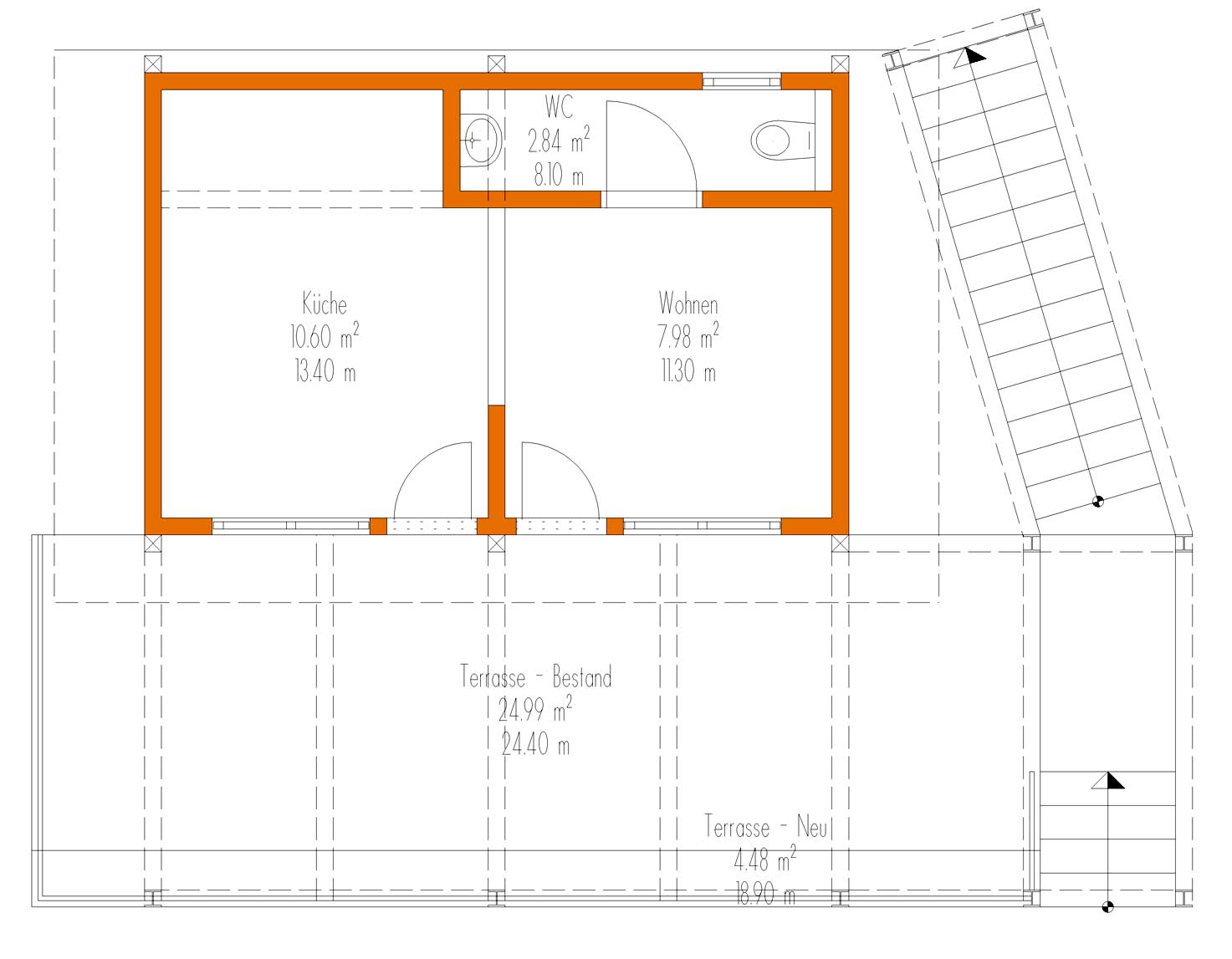
Modernisierung Terasse
     

impressum | sitemap | seite drucken